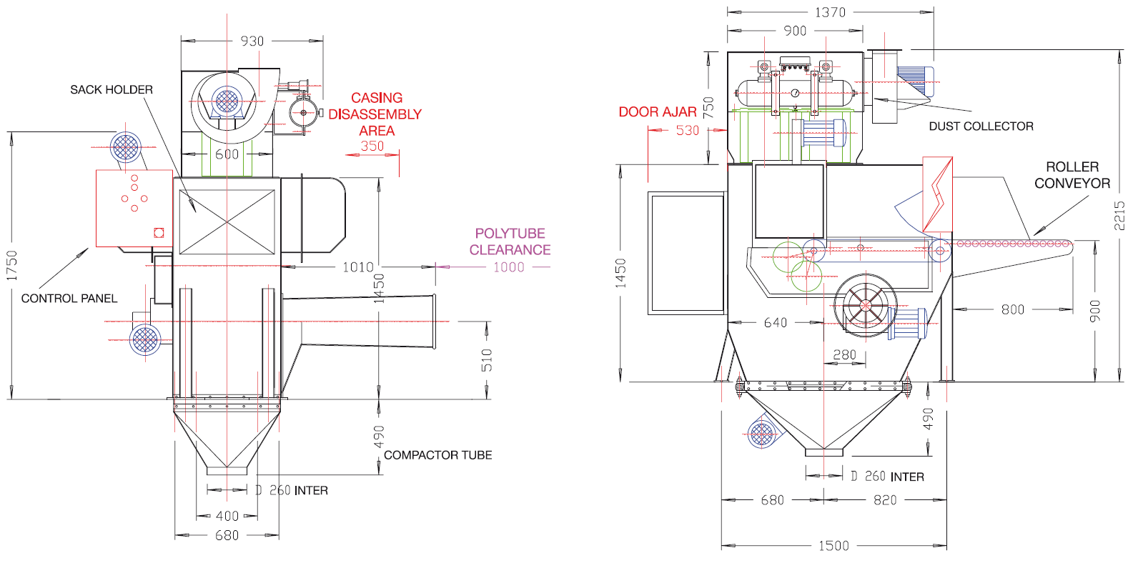
automatic sacks opening unit dimensions

automatic sacks opening unit dimensions

Sie möchten Ihre Fertigungsprozesse gestalten?

Wir haben maßgeschneiderte Lösung

Kontaktiere uns